产品快速通道

当前栏目名
您当前的位置:boyu·博鱼最新买球网 > 产品中心 > 小电机展厅可逆电机40W

- 产品参数:
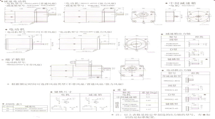
- 产品型号: 9RDG
- 额定功率:40W
- 电压:110~230
- 转速/极数:1300~1550
- 安装方式:立式
详细参数
可逆电机特点
适用于正反转用途:可逆电机可以实现瞬间转换旋转方向,额定时间为30分钟。使用于反复实现正反转的用途,转速、扭矩、电压等基本特性与普通异步电机一样。为了短时间反复实现转换正反转,因此会启用刹车。
额定为30分钟:可逆电机短时间实现转换正反转,因此输入损耗相对较大,所有可逆电机的温度会比普通异步电机要高。所以,本身设计要求现代额定运转时间为30分钟。
刹车装置:可逆电机的电机后端配有简易的刹车装置(摩擦刹车),此装置作用是加上摩擦负载,可以提高瞬间实现正反转的特性,还能减速电机打滑。